OPIS SZCZEGÓŁOWY OFERTY NR 72221

    Piętro: 2
    Pokoje: 3

    Pow. piwnicy: 0,6 m2
    Poziomy: Jednopoziomowy
    W budynku: Apartamentowiec
    Własność: Własność
    Wolne od: od zaraz

    Balkon: Balkon
    Kuchnia: Aneks kuchenny
    Ogrzewanie: C.O. miejskie
    Okna: PCV
    Pow. pokoi: 38 m2
    Stan instalacji: Nowa
    Stan kuchni: Do własnej aranżacji
    Stan łazienki: Do własnej aranżacji
    Stan techniczny: Deweloperski
    Układ pokoi: Rozkładowy

    Budynek: Apartamentowiec
    Do centrum: 2 km
    Garaż: Pod budynkiem
    Głośność: Cicho
    Liczba pięter: 2
    Materiał bud.: Cegła
    Rok budowy: 2025

    Alarm
    Domofon
    Drzwi antywł.
    Internet
    Kamery
    Telefon
    TV Kablowa
    Winda

    Czynsz Administr.: 500 zł
    Za garaż: 80 zł
OPIS
3-pokojowe mieszkanie z balkonem | stan deweloperski | 2. piętro | miejsce w hali + komórka (opcjonalnie)

Dobre Nieruchomości prezentują:
Na sprzedaż funkcjonalne, 3-pokojowe mieszkanie w stanie deweloperskim położone na 2. piętrze kameralnej inwestycji  – idealne dla pary, rodziny lub jako inwestycja pod wynajem.
Wolna ręka w aranżacji: urządzisz dokładnie tak, jak chcesz.

Atuty oferty
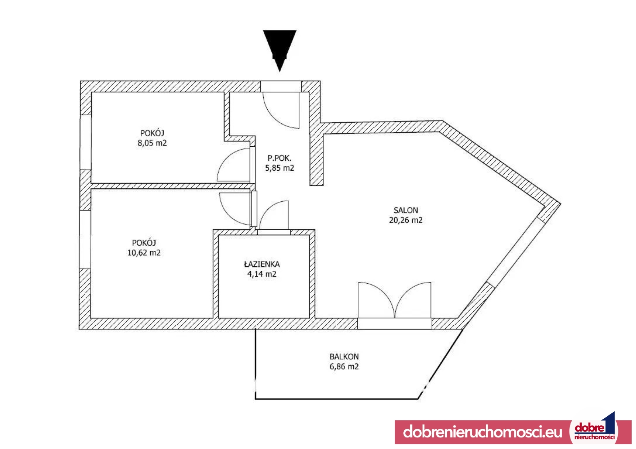
Układ 3 pokojowy: pokój dzienny z aneksem + 2 sypialnie.
Balkon o wygodnej powierzchni – wyjście z salonu.
Opcja: miejsce postojowe w hali podziemnej + komórka lokatorska (piwnica) za 40 000 zł.
Świetna lokalizacja: CH Rondo, Park Dolina 5 Stawów, szybki dojazd do centrum (ok. 2 km).
Dogodna komunikacja: tramwaje, autobusy, ścieżki rowerowe.

Rozkład i metraże
Salon z aneksem kuchennym – ok. 20,26 m²
Sypialnia 1 – ok. 10,62 m²
Sypialnia 2 – ok. 8,05 m²
Łazienka – ok. 4,14 m²
Przedpokój – ok. 5,85 m²
Balkon – ok. 6,86 m²

Układ jest bardzo ustawny – w strefie dziennej zmieścisz sofę z TV i stół dla 4–6 osób; w sypialniach pełnowymiarowe łóżka i zabudowy na wymiar. Do ogłoszenia dołączone są rzut oraz wizualizacja dla łatwiejszego planowania wykończenia.

Standard deweloperski
Tynki wewnętrzne, rozprowadzone instalacje, grzejniki; do wykończenia podłogi, łazienka i zabudowa kuchni według projektu nabywcy. Budynek nowy, z częściami wspólnymi w wysokim standardzie.

Lokalizacja
W bezpośrednim sąsiedztwie CH Rondo, liczne sklepy i usługi, Park Dolina 5 Stawów – świetne miejsce do biegania i spacerów. Przystanki tramwajowe i autobusowe w zasięgu krótkiego spaceru, wygodny wyjazd w kierunku centrum i głównych arterii miasta. Trasy rowerowe tuż obok.

Sławomir Włodarczyk
Dobre Nieruchomości
690 050 061


Jesteśmy z klientem na każdym etapie transakcji - od prezentacji, przez umowę przedwstępną, akt notarialny, na wydaniu nieruchomości kończąc.
Zainteresowanym chętnie pomożemy w doborze najlepszej oferty kredytowej.
Więcej dobrych ofert na dobrenieruchomosci.eu

Nota prawna
Opis oferty zawarty na stronie internetowej sporządzany jest na podstawie oględzin nieruchomości oraz informacji uzyskanych od właściciela, może podlegać aktualizacji i nie stanowi oferty określonej w art. 66 i następnych K.C.

Uwagi dodatkowe
Kontaktując się z agentem odpowiedzialnym za ofertę, koniecznie zapytaj jakie są warunki współpracy z naszym biurem oraz co w związku ze współpracą zapewniamy. Dbając o bezpieczeństwo klientów sprzedających, a często także na ich wyraźne życzenie, nie podajemy adresów nieruchomości bez podpisania uprzednio umowy o pośrednictwo w kupnie lub najmie.
Prowizja jest uzgadniania indywidualnie, na spotkaniu i zależy od zakresu wykonywanych obowiązków na rzecz klienta zamawiającego.

KONTAKT

Wyrażam zgodę na przetwarzanie przez pośrednika moich danych osobowych zgodnie z ustawą z dn. 29.08.1997 (Dz. U. Nr 133, poz. 883).*